A Backyard remodel in The Woodlands, Texas
A completely remodeled backyard
Pool & patio remodel, custom framed patio cover, attached pergola, kitchen, artificial turf, & landscaping
Piefer Project
The existing backyard had strong potential, but the pool, patio, and outdoor living areas no longer met the homeowners’ needs. The goal was to modernize the pool and patio, add comfortable shaded living and cooking spaces, create safe and usable play areas for kids and pets, and rebuild the infrastructure beneath it all to ensure long-term reliability.
The project was a comprehensive pool, patio, and outdoor living remodel that touched every part of the backyard. From the pool and spa to structures, hardscape, kitchen, turf, landscaping, lighting, drainage, and irrigation, this project was designed to function as a single, cohesive outdoor environment, built for everyday living.
Envy Exteriors designed and executed a full-scope backyard transformation, rebuilding both what you see and what you cannot, so the finished space performs as beautifully as it looks.
Pool & Spa Remodel
The pool and spa were reimagined to enhance both aesthetics and experience, modernizing both the appearance and performance of the existing backyard centerpiece. The renovation focused on refining finishes and improving functionality.
The pool was resurfaced with new PebbleSheen plaster, delivering a smooth, durable finish with a refreshed color palette. Updated waterline tile and coping enhanced the pool’s overall aesthetic while providing long-term durability. The spa was modified with a cut-open spillway, allowing water to flow naturally into the pool and creating a more cohesive, resort-style look.
In addition to visual upgrades, the project included refreshed water features and upgraded pool equipment to improve efficiency, reliability, and everyday enjoyment. The result is a pool and spa that feels new, performs better, and anchors the entire outdoor living space with a refined, modern presence.
-
Pool resurfaced with PebbleSheen® for a smooth and durable finish.
-
Spa spillway cut open to allow a clean, continuous overflow into the pool and a stunning look when the sun hits the new tile.
-
New coping for a refreshed & modern edge.
-
Updated water features to improve sound, movement, and visual interest.
-
Pool equipment upgraded for improved efficiency and reliability.




Covered Outdoor Living & Structures
An attached hip-style patio cover extends the home’s living space outdoors while maintaining architectural consistency.
-
Solid cedar posts sized for strength and longevity.
-
Stained tongue-and-groove ceiling.
-
Recessed lighting for evening use.
-
High-flow ceiling fans for comfort.
-
Materials and color selections matched to the existing home.
- Remodeled existing patio ceiling to match with the same stained wood, lights, and fan.
Attached Custom Cedar Pergola
An attached custom cedar pergola complements the patio cover, featuring solid cedar posts and a single column pedestal to define space without closing it in.
- High flow fan matching other fans in the patio cover.
- Track lighting for appropriate lighting and control
- Television mounted for an additional entertainment venue.
- Best in class roof that blocks all UV rays, reduces ambient temperature 8 degrees, and carries the best warranty in the business.


Marble patio
The patio was fully remodeled to create a seamless connection between the pool, kitchen, and the structures.
-
Anti-slip marble patio in Diana Royal, a light earth-tone stone.
-
Durable installation designed for long-term, low-maintenance performance.
- Matched pool coping for a seamless look and finish.

Outdoor Kitchen
A custom L-shaped outdoor kitchen anchors the entertaining space.
- Bar counter extending over the lower patio for bar seating.
- Built-in grill and griddle.
- Dedicated notch for a smoker.
- Storage doors, trash drawer, and refrigerator.
- 3CM granite countertop.
- Traditional 2×4 split-face natural stone veneer matching the pool wall.
On the neighboring side, a stained privacy slat wall provides separation and includes a mounted TV, creating a defined entertainment zone within the larger space.



Green Turf Space
The right side of the backyard features artificial turf, providing a safe, clean play area for kids and pets while eliminating weekly lawn maintenance. This allows the homeowners to keep gates locked and the yard looking pristine year-round.
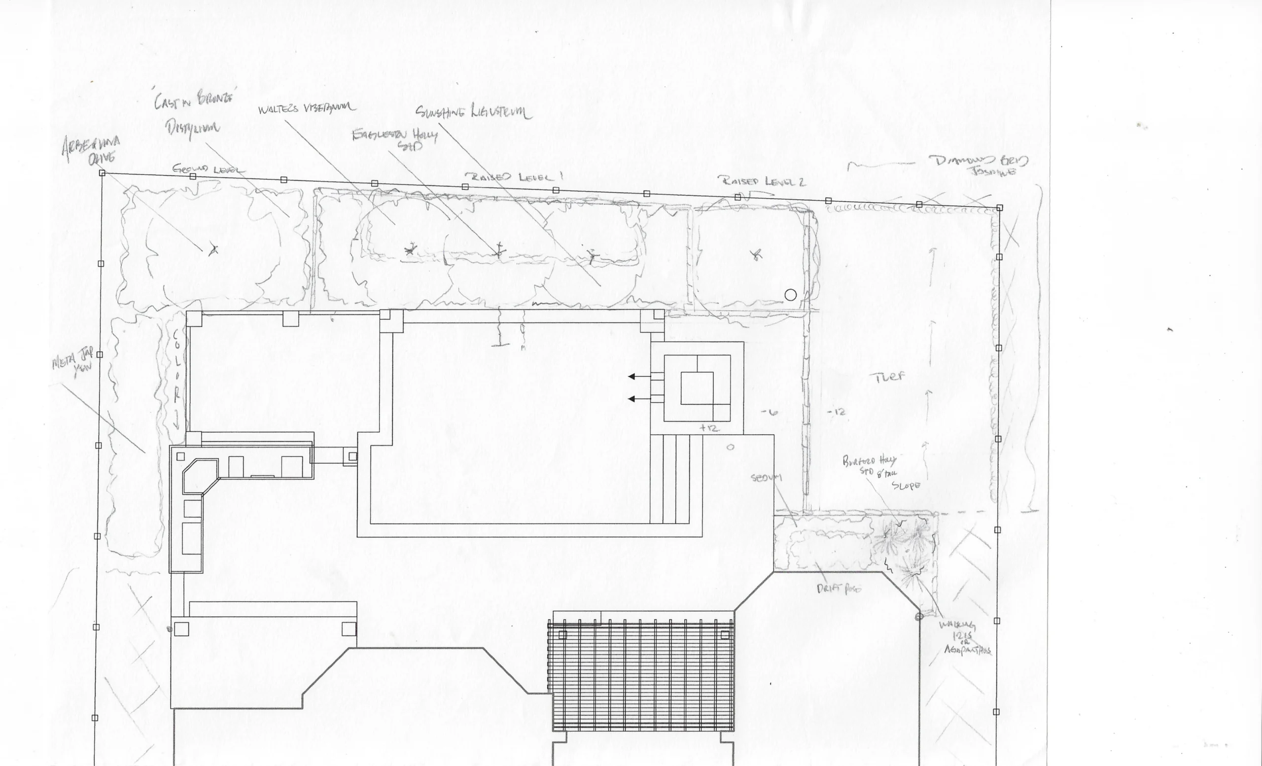
Landscaping & Lighting
- Landscaping wraps the rear and side property lines with a focus on privacy and layering.
-
Eagleston holly trees create a natural privacy hedge to block out roof lines and sight lines to neighboring properties.
-
Understory plantings add color, texture, and depth.
-
Plant selections were chosen for long-term growth and visual balance.
- Outdoor lighting was installed throughout the space on landscaping, patio decks, structure, walkways, and the house to enhance usability, aesthetics, and security after dark, highlighting key features while maintaining a warm, inviting atmosphere.




Drainage & Irrigation Infrastructure
Behind the scenes, infrastructure played a critical role in this project’s success.
-
Custom drainage system designed to collect pool overflow, patio drains, and gutter downspouts to be conveyed and emitted at the street.
-
An integrated irrigation system was installed to sustain healthy plant material and establish long-term growth.
This approach ensures proper water management, protects the hardscape and structures, and supports the longevity of the investment into the property.
2D & 3D Design
Before construction began, the Piefer Project was carefully planned using Envy Exteriors’ 3D design process. This allowed the homeowners to visualize how the remodeled pool, patio cover, pergola, and outdoor kitchen would work together within the space.
The 3D plans ensured proper layout, scale, and material coordination, helping align expectations and streamline decision-making before construction started.
Once the 3D design is complete, we met with the client, made changes during our meeting, and the making changes until the homeowner was in love with the plan and design. As you can see here, the final 3D design is slightly different than the original 2D design that we started with, based on the feedback from the client. We work with our clients, ensuring that the design meets their needs while providing an exceptional experience.


backyard Remodel Construction & transformation
Construction began with the pool and spa remodel, including new PebbleSheen plaster, updated tile and coping, a cut-open spa spillway, refreshed water features, and upgraded pool equipment. These improvements modernized the pool while enhancing both performance and visual appeal.
The patio was then remodeled to accommodate new living areas and structures. A hip-style patio cover was built using solid cedar posts and finished with a stained tongue-and-groove ceiling, recessed lighting, and a high-flow ceiling fan. An attached custom cedar pergola with a single column pedestal added architectural interest and additional shade. The outdoor kitchen, landscaping, artificial turf, lighting, drainage, and irrigation were completed to tie the entire space together.





Materials & Finishes
The Piefer Project features a carefully curated selection of materials chosen for durability, performance, and visual cohesion. Each finish was selected to complement the home’s architecture while withstanding Houston-area climate conditions and daily use.
- PebbleSheen plaster finish
- New waterline tile
- Updated coping
- Cut-open spa spillway
- Updated water features and pool equipment
- Light earth-tone, anti-slip Diana Royal marble pavers
-
Stained tongue-and-groove ceiling
-
Granite countertops
-
Stainless steel cooking appliances



Are you ready to remodel your backyard?
This outdoor transformation combined a complete pool and spa remodel with expanded living and entertaining areas. The addition of a hip-style patio cover and custom cedar pergola created defined gathering zones while maintaining an open, inviting feel. A fully equipped L-shaped outdoor kitchen with bar seating anchors the space, making it ideal for hosting. Thoughtful material selections and upgraded systems ensure long-term durability, comfort, and ease of use.
